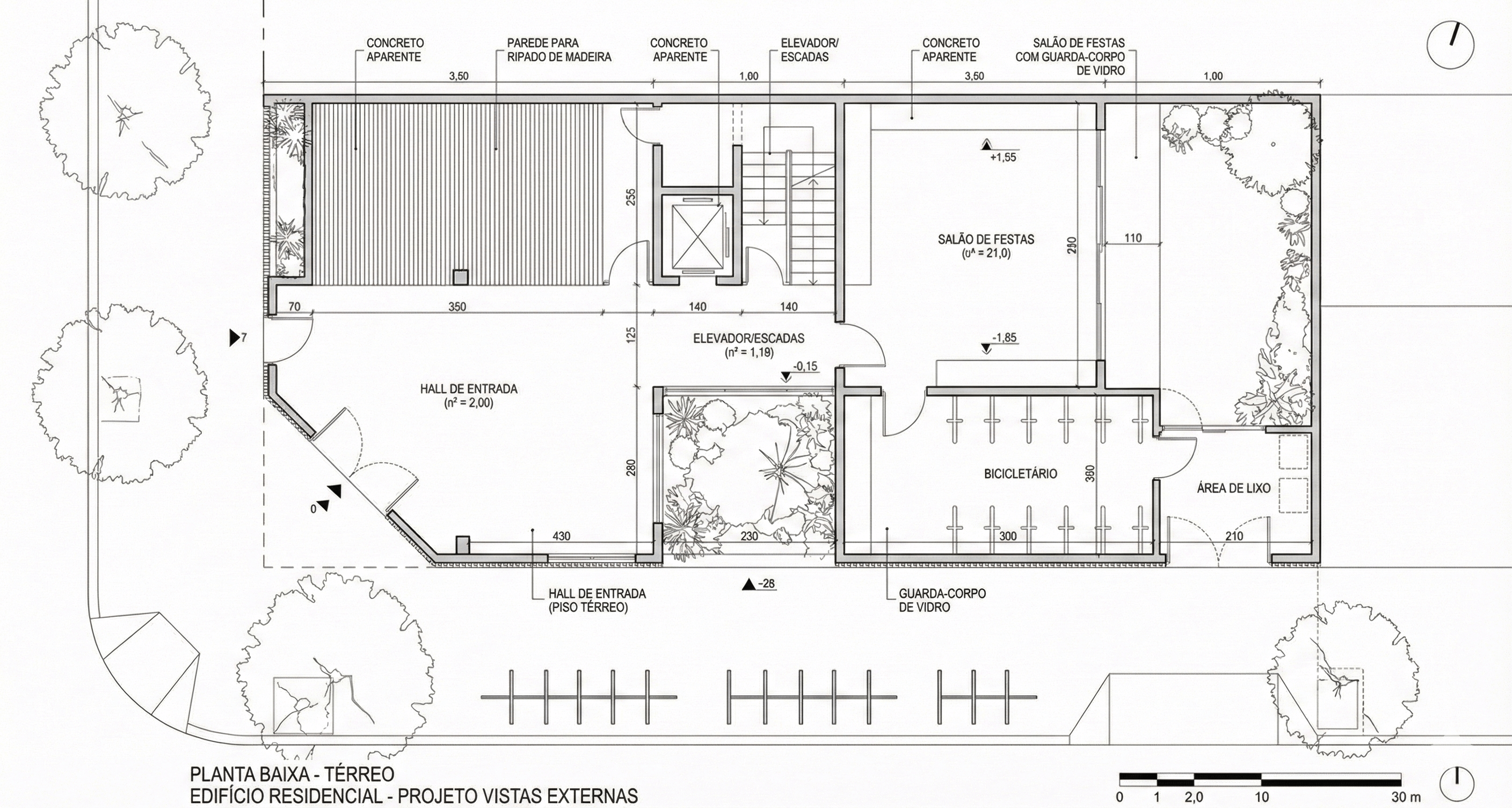
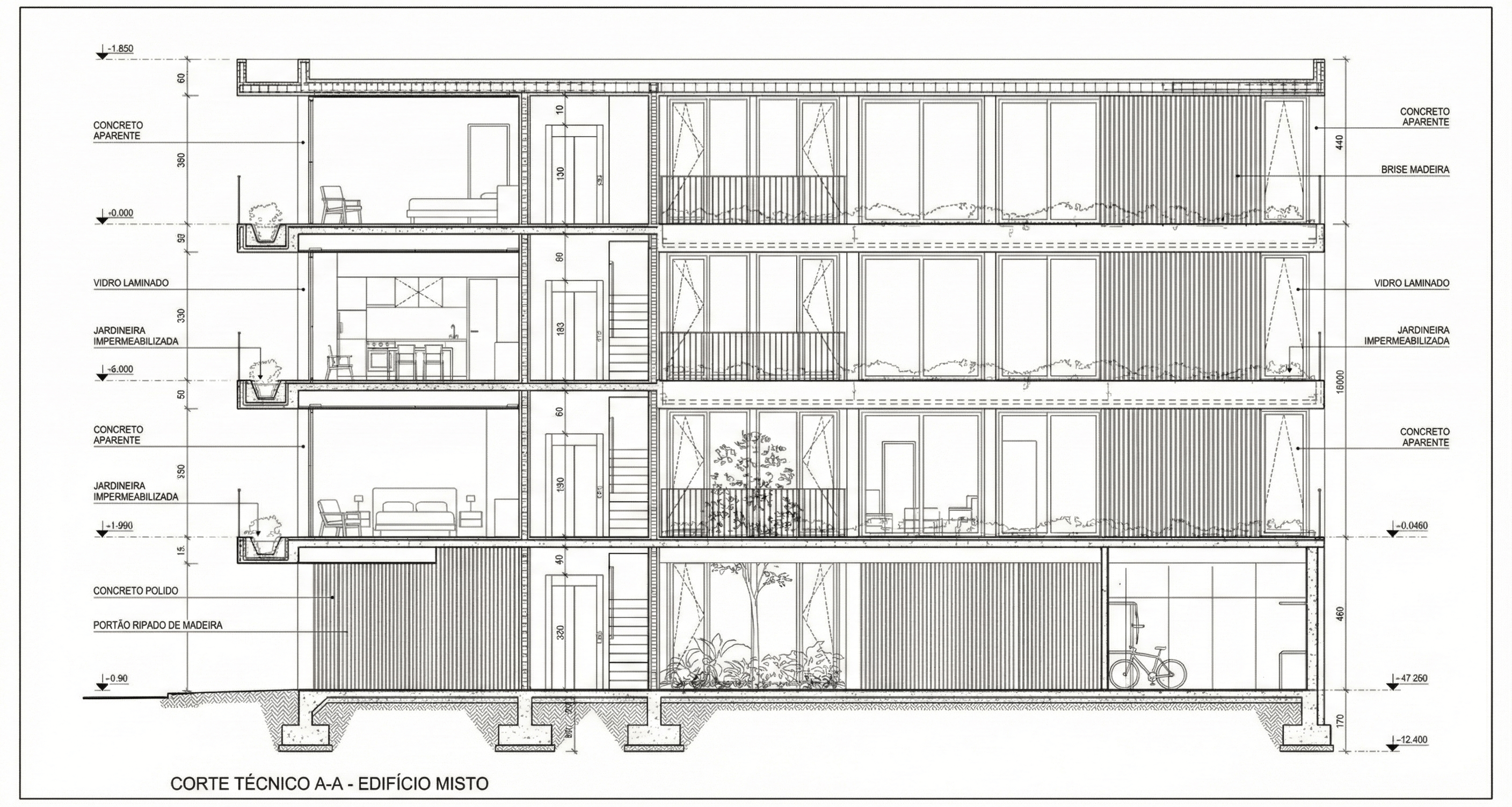
Edifício multifuncional – Vila Madalena

Arquiteta
Solimar Mendes Isaac
Ano
2025
Tipologia
Multiuso